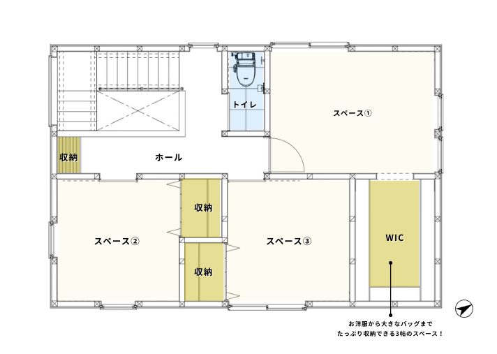
ホーム 物件情報 サンライフ川中本町2号地ソラマドモデルハウス【分譲住宅】 お気に入り物件一覧 サンライフ川中本町2号地ソラマドモデルハウス【分譲住宅】 お気に入りに登録する 解除する この物件の 資料請求 来場予約 コンセプト 物件概要 お家の特徴 立地・周辺環境・MAP お支払い例・間取 ランドプラン 1 floor 2 floor この物件の 資料請求 来場予約 一覧へ戻る 0120-939-235 受付/10:00~18:00 定休日/水曜日 お気に入り一覧を見る この物件の来場予約 この物件の資料請求 電話